Print current pageProduct Description
- brief introduction
- technical parameter
- Product size
General
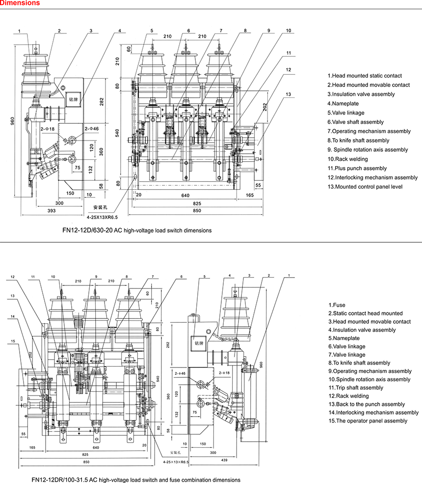
FN12-12D and FN12-12DR load break switch and fuse switch is a three phase H.V. switch equipment of 12KV, 50Hz for breaking or closing load current, no-load transformer and cable charging current and closing short-circuit current. The fuse switch can break short circuit current, the load switch with earth switch can withstand short-circuit current. It is especially suitable for ring main network or terminal power supply substation, to control load and protect from short circuit.
Type and meaning

中文
ENGLISH
Email:
website:
Service hotline





